Electrical Design and Consultancy Firm (EDC Firm)

Electrical Design & Consultancy Firm (EDC Firm) provides specialized electrical engineering design and consultancy services for power systems, substations, industrial facilities, and commercial projects. Our team delivers technically sound, reliable, and standards-compliant solutions that ensure safe, efficient, and sustainable electrical infrastructure. Our expertise includes power system studies, Single Line Diagram (SLD) development, grounding and lightning protection design, relay coordination studies, and electrical system optimization in accordance with international standards such as IEC, IEEE, NEC, NFPA, BS, and BDS.

Project Discussion

Design Discussion

We begin by collecting comprehensive site data and conducting feasibility assessments. Our engineers develop precise Single Line Diagrams (SLDs) and perform essential system studies—including short-circuit analysis, grounding design, and relay coordination—ensuring full compliance with IEC, IEEE, NEC, NFPA, BS, and BDS standards.

Project Discussion

Engineering & Development

Our engineering team prepares detailed electrical designs, technical calculations, and system layouts to ensure optimal performance, safety, and reliability. Advanced engineering practices are applied to develop practical and efficient electrical solutions tailored to project requirements.

Project Discussion

Delivery & Commissioning

We deliver comprehensive design documentation and provide technical support throughout project implementation. Our focus is to ensure that the designed electrical systems are properly executed, meeting both engineering specifications and operational requirements.

Engineering Expertise

Specialized electrical engineering analysis and design services for power systems and industrial infrastructure.

Power System Studies

Load flow analysis, short circuit studies, relay coordination, and system stability analysis.

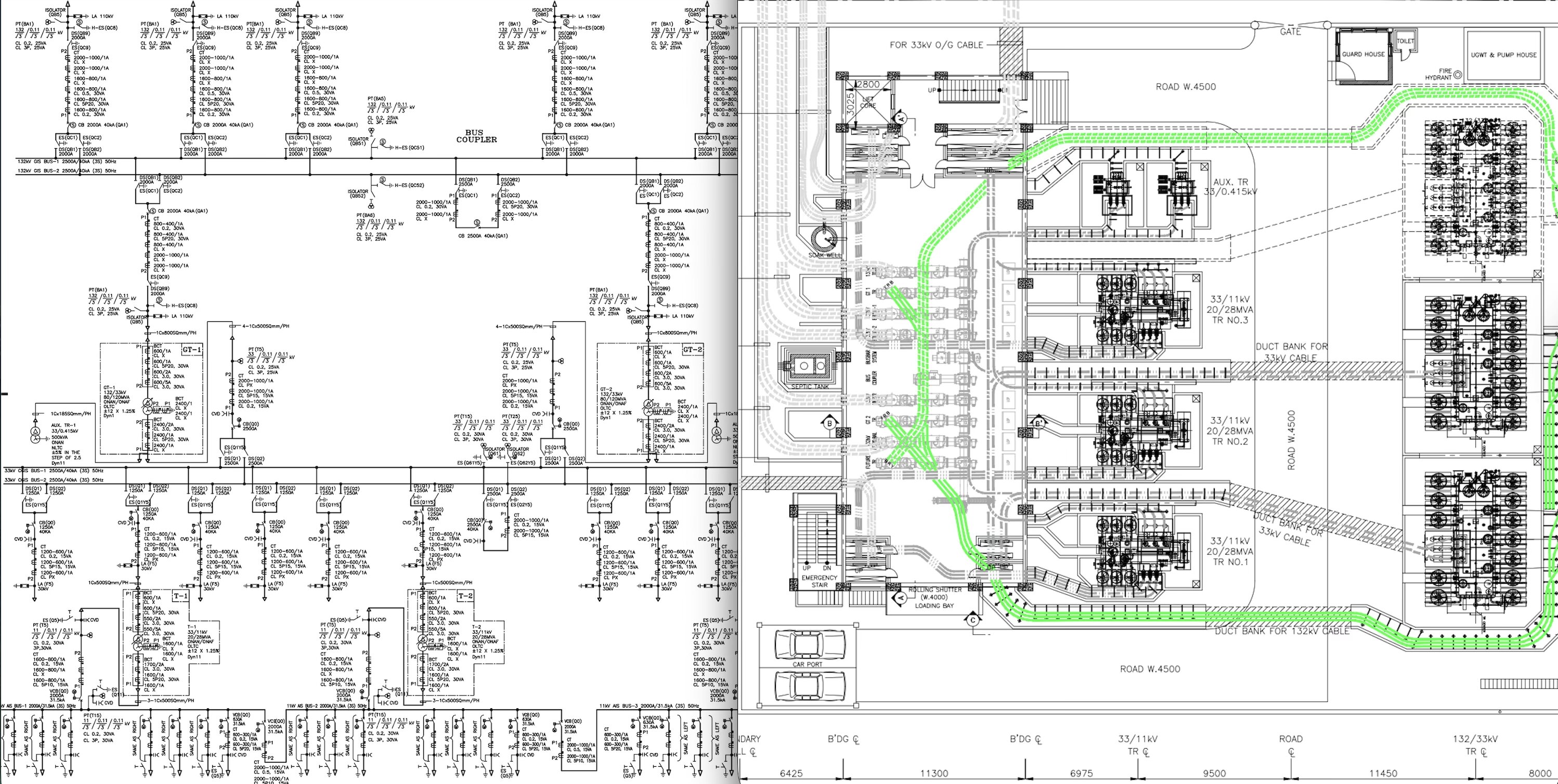
Substation Engineering

Design and engineering of AIS and GIS substations including SLD development and protection schemes.

Electrical System Design

Preparation of single line diagrams, equipment sizing, cable calculations, and system protection philosophy.

Grounding & Lightning Protection

Ground grid design, earthing analysis, and lightning protection system design for safety and compliance.

Renewable Power Integration

Grid integration studies and electrical design for solar, wind, and hybrid renewable energy projects.

Technical Consultancy

Feasibility studies, technical review, engineering advisory, and independent design verification.

20+

Projects Completed

10+

Utility & Industrial Clients

15+

Years of Engineering Experience

12+

Power System Study Types

Need Electrical Engineering Consultancy?

Contact EDC Firm for professional electrical system design, power system studies, and engineering advisory services.

Professional Electrical Designs